Mongge
Ejercicios
Colecciones
Editor
Català
English
Español
Euskera
Italiano
Iniciar sesión
Registrarse
Registrarse
Vistas Figura #3
Anadiaz07
17/9/15
2997
Seguir
Resolución
Solución
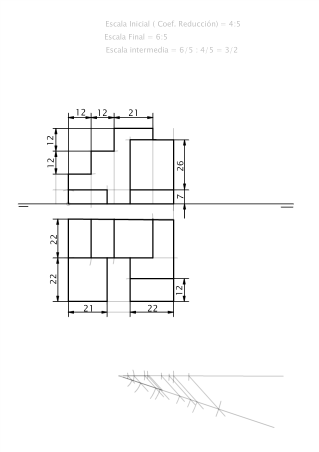
Figura #3
Alzado
Planta
Perfil
URL del ejercicio
Código para embeber