PAU Madrid 2024-25 Ordinaria Ejercicio 3.1

Resolución
Solución

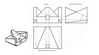
Dadas las proyecciones diédricas normalizadas, dibuje la proyección caballera sabiendo que el eje Y

tiene coeficiente 1:1. Dibujar las líneas ocultas.

Z

X

X

Y

Z

Y

X